感震ブレーカー


感震ブレーカーとは
地震による停電後に電気が復旧したときのリスク
大きな地震が来たとき一時的に停電になる場合があります。
地震後の停電から電気が復旧した時、暖房器具・アイロンの周辺や破損した電源ケーブルが火元となる「通電火災」が発生することがあります。通電火災のリスクは以下のように家庭のあらゆるところに潜んでいます。

感震ブレーカーの機能
感震ブレーカーは、震度5強以上で
主幹漏電ブレーカを自動OFF
大きな地震に備えましょう!

■感震ブレーカーの動作フロー
※地震感知後自動OFFまでの3分間は、夜間などに地震が発生した際に避難経路の照明電源を確保するため、3分間(初期設定)の通電時間を設けています。
感震ブレーカー設置の必要性について
東日本大震災における火災発生原因について
東日本大震災における火災のうち原因が特定されたものの過半数が電気関係の出火でした。(中略)
感震ブレーカーの設置は、不在時やブレーカを落として避難する余裕がない場合に電気火災を防止する有効な手段です。
出展:「防災情報のページ」(内閣府)「大規模地震時の電気火災の発生抑制に関する検討会関連の情報」
https://www.bousai.go.jp/jishin/syuto/denkikasaitaisaku/index.html

南海トラフ地震防災対策推進基本計画策定(令和元年5月)
南海トラフ巨大地震では、地震の揺れと火災による建物等の被害が、これまでの地震災害とは次元の異なる甚大な規模であり(中略)火災が多数発生した場合の消火活動の困難さを考慮し、「火災を発生させない」事前の対策を推進する。
出展:「南海トラフ地震防災対策推進基本計画」中央防災会議(内閣府)
https://www.bousai.go.jp/jishin/nankai/pdf/nankaitrough_keikaku.pdf

震度の最大値の分布図(出展元の強震波形計算による)
出展:「南海トラフ巨大地震対策について(最終報告)」中央防災会議(内閣府)
https://www.bousai.go.jp/jishin/nankai/taisaku_wg/pdf/20130528_houkoku_s1.pdf
首都直下地震緊急対策推進基本計画(令和5年12月)
首都直下地震被害への主な対策(予防対策の推進)として、感震ブレーカーの普及が挙げられています。
(抜粋) ・感震ブレーカー等の普及、避難路の整備、密集市街地の解消等の火災対策。
出展:首都直下地震に係る被害想定と首都直下地震緊急対策推進基本計画等(内閣府)
https://www.bousai.go.jp/jishin/syuto/taisaku_wg_02/1/pdf/sanko_siryo2.pdf

感震ブレーカーの普及促進に関する動き
地震災害の拡大抑止のために、内閣府をはじめとする各地域における感震ブレーカーの普及促進の活動が広がっています。
●国土強靭化年次計画2024(令和6年7月)内閣府より
(抜粋)地震発生時の住宅火災の発生を抑えるため(中略)電気に起因する火災の発生抑制のための感震ブレーカーの普及を加速させるとともに、特に危険性の高い木造密集市街地等について集中的な取り組みを行う。
●全国知事会等からの提言より
(抜粋)感震ブレーカー設置などの減災化の財政措置など、引き続き対策の継続・強化を図る。
●消防関係における方針より
(抜粋)近年の大規模地震においては、電気に起因する火災が多く発生していることから、地震時の電気火災リスクを低減するため、感震ブレーカー等の普及を積極的に推進する。
出展:感震ブレーカーの普及推進に関する背景・目的(総務省消防庁)から抜粋
https://www.fdma.go.jp/singi_kento/kento/items/post-166/01/shiryou3.pdf
感震ブレーカー等の性能評価ガイドライン(平成27年2月)
感震ブレーカー等の普及にあたっては、まずは、大規模地震時の同時多発火災の危険性を十分に周知し、また、近年の地震火災の主たる要因は電気によるものであることについて、国民の理解を促進することが重要である。(中略)
また、木造住宅密集市街地等における防災対策を検討する地方公共団体等にあっては、地域住民に信頼性の高い感震ブレーカー等の普及促進に向けた取組みを行う際の一助となることを期待するものである。
内線規程が改定(平成31年3月)
内線規程JEAC8001 2016 [2019年追補版]に「 感震ブレーカー 」に関する改定がありました。
1365-10 感震遮断機能付住宅用分電盤
- 勧告
[「地震時等の電気火災の発生・延焼等の危険解消に取り組むべき地域」及び都市計画法に基づく「防火地域」・「準防火地域」の住宅などへの施設]
次の各号のいずれかに該当する場合は、感震遮断機能付き住宅用分電盤を施設すること。- ①「地震時等の電気火災の発生・延焼等の危険地域解消に取り組むべき地域」の住宅など地方自治体が普及対象の建物種別を限定している場合は、その建物種別のみ。)
- ②都市計画法に基づく「防火地域」・「準防火地域」の木造及び鉄骨造の住宅など(共に耐火建築物を除く)
- 推奨
[前項以外の全国の住宅などへの施設]
前項以外の全国の住宅などには、感震遮断機能付き住宅用分電盤を施設すること。- 注1)ここでいう住宅などには、住宅のほかに、住宅用分電盤を施設する店舗、事務所などを含む。
感震ブレーカー作動後の電気復旧の方法
感震ブレーカーが作動した場合、通電火災を防ぐために、住宅分電盤の主幹ブレーカをOFFにしてその先の住宅内の電気を止めます。その場合の電気を安全に復旧させるには、以下の方法を実施してください。
電気を復旧させる前に
電気を復旧させる前に、地震の影響で発生した住宅内の危険箇所の有無を確認してください。
①破損している電気製品や、建材や家具の下敷きなどで破損した電源コードが在る場合は、コンセントから電源コードを抜いてください。
②電気ストーブやアイロンなどの電熱器具周辺の安全カーテン・衣服など燃えやすいものが落下し電熱器具に覆いかぶさったものは取り除いてください。
<外見では確認できないリスクへの注意>
家屋の揺れ・倒壊により、外見から確認し難い、壁内・天井内の配線ケーブルの破損や電気製品内部が異常をきたす場合があります。電気復旧後に発煙するなどの異常を発見したら、直ちに住宅分電盤の主幹ブレーカを手動でOFFにしてください。
電気復旧の方法(主幹ブレーカONの方法)


※主幹ブレーカをONにしても電気が復旧しない場合は、電力会社からの送電が停止していることが想定されますので、送電状況をご確認ください。
※以下の場合は、ONにした主幹ブレーカが直ぐにOFFになることがあります。
・住宅壁面の倒壊・傾斜で住宅分電盤が大きく傾斜(15度以上)している場合
・住宅内の配線及び電気製品等から漏電している場合
感震ブレーカー交換時期お知らせ機能について
感震ブレーカーは、正常動作を確保するため、使用開始から約10年経過後、ブザー音と電源表示灯(緑色LED)の点滅により交換時期をお知らせしています。交換時期になりましたら、感震ブレーカーの交換を推奨いたします。
交換時期お知らせ機能の動作フロー

分電盤のシリーズにより操作位置が異なります
感震ブレーカー・地震かみなりあんしん ばん地震あんしん ばん・感震ブレーカー搭載マルチボックス(BQX702搭載機種のみ)
感震リニューアルボックス
漏電ブレーカAB-60J型 感震ブレーカー機能付 中性線欠相保護付
商品ラインアップ
既設用既設のパナソニック製住宅分電盤に追加で設置する場合
感震ブレーカー
既設のパナソニック製分電盤(コンパクトブレーカ搭載品)の分岐回路1回路分の空きスペースに追加設置することができます。
特長
- 通電火災対策に震度5強以上の地震で主幹漏電ブレーカを自動遮断
- 安全性情報をブザー音でお知らせ
(ピー、ピー)地震波感知時
(ピー、ピー)傾き感知時(傾斜15度以上)
(ピピッ、ピピッ)交換時期お知らせ時(10年)
(ピッ、ピッ)部品異常お知らせ時 - 1Cモジュール、分岐回路どこでも取付可能
分岐1回路分空きスペースがあれば上下段どちらにも取付できます。 - 工具不要で施工性向上
本体交換時、本体と擬似漏電出力線をコネクタで取り外せるので、工具を使用する必要がありません。
※施工には電気工事士の資格が必要です。


既設用既設のパナソニック製住宅分電盤(ニューコスモシリーズ)に設置する場合
漏電ブレーカ AB-60J型 感震ブレーカー機能付 単3中性線欠相保護付
既設のパナソニック製住宅分電盤(ニューコスモシリーズ パネルF・パネルS)の主幹漏電ブレーカがAB-60型であれば、主幹ブレーカを交換することで、感震ブレーカーの機能を追加することができます。
特長
-
・単3中性欠相保護付 漏電ブレーカと感震ブレーカーを一体化

・通電火災対策に震度5強以上の地震で自動遮断
・安全性情報をブザー音でお知らせ
・漏電ブレーカAB-60型(中止品)と互換性があるので、
既設分電盤※の主幹漏電ブレーカ取替に対応
- ※対象住宅盤:
①ニューコスモシリーズ パネルF
(品番:BQFA**/BQFC**/BQFD**)
②ニューコスモシリーズ パネルS
(品番:BQSA**/BQSC**/BQSD**)
※パネルFの縦型(品番:BQFH**/BQFG**)は対象外


【取替えイメージ】


| フレーム | 極数素子数 | 定格電流 | 漏電感度電流 | 品番 | 希望小売価格 (税抜) |
|---|---|---|---|---|---|
60AF |
3P2E |
40A |
30mA |
44,000円 |
|
50A |
30mA |
||||
60A |
30mA |
- 注1)逆接続不可。
- 注2)使用する電線は、定格電流値に適合するサイズを選定してください。
- 注3)雷サージ・高調波(インバータなど)対応形です。インバータなどの周波数制御回路では、必ずインバータの一次側に設置してください。
- 注4)鉛直面に対して±10°以内に取り付けてください。
- 注5)過電圧検出リード線は、ブレーカの二次側(N相)に確実に接続してください。
接続できない場合は、ブレーカの二次側端子に確実に接続してください。 - 注6)擬似漏電接続線は、ブレーカの一次側(N相)に確実に接続してください。
- 注7)単相3線式以外の回路には使用できません。
- 注8)トランシーバなどの無線機を使用する場合は、1m以上離れて使用してください。
単3中性線欠相保護が誤作動(ブレーカトリップ)する恐れがあります。
新設・既設用新築やリフォームなどで分電盤を新設する場合
既設用既設分電盤に空き回路スペースがない場合や、他社製の分電盤の場合
感震リニューアルボックス
既設分電盤の一次側(幹線側)に外付け設置することで、感震機能を追加することができます。
特長
- 通電火災対策に震度5強以上の地震で主幹ブレーカを自動OFFする感震ブレーカー(BQX702)を搭載。
- 単3配線すべての分電盤に対応。
- 漏電ブレーカ搭載で漏電遮断機能を付加。

| 主な容量 | 品番 | 希望小売価格 (税抜) |
寸法(半埋込寸法)(mm) | 収納機器 | ||
|---|---|---|---|---|---|---|
タテ |
ヨコ |
フカサ |
||||
30A |
50,800円 |
325 |
150 |
124 |
BJWA3303(30A)+BQX702 |
|
40A |
53,500円 |
BJWA3403(40A)+BQX702 |
||||
50A |
53,500円 |
BJWA3503(50A)+BQX702 |
||||
60A |
55,000円 |
BJWA3603(60A)+BQX702 |
||||
75A |
64,100円 |
BJWA3753(75A)+BQX702 |
||||
100A |
70,600円 |
BJWA31003(100A)+BQX702 |
||||
- 注1)住宅分電盤付近に本製品が増設できるスペースがあるか確認してください。
- 注2)引込線に余長があることを確認してください。余長がない場合、再配線または電線の延長が必要となります。
- 注3)配線延長時は住宅分電盤に電源接続部が配置できるスペースがあるか確認してください。
- 注4)住宅分電盤の主幹容量を事前に確認し、同じ容量の本製品を選定ください。
- 注5)搭載機器の詳細については、各機器の仕様書をご覧ください。
既設用感震機能と回路増設が必要な場合
感震ブレーカー搭載マルチボックス
既設分電盤の一次側(幹線側)に外付け設置することで、感震機能の追加と回路を増設することができます。
特長
- 通電火災対策に震度5強以上の地震で主幹ブレーカを自動OFFする感震ブレーカー(BQX702)を搭載。

| 主幹容量 | 品番 | 希望小売価格 (税抜) |
寸法(半埋込寸法)(mm) | 回路 スペース |
||
|---|---|---|---|---|---|---|
タテ |
ヨコ |
フカサ |
||||
30A ※1 |
59,400円 |
325 |
314 |
124 |
7回路 |
|
40A |
61,200円 |
|||||
50A |
61,200円 |
|||||
60A |
61,200円 |
|||||
75A |
70,200円 |
|||||
- ※1 BQE8307ZAの主幹ブレーカは漏電ブレーカABF型を搭載しています。
- 注1)既設の住宅分電盤の1次側に設置してください。
- 注2)太陽光発電用連系ブレーカを搭載する場合、主幹ブレーカを3P3E逆接続可能型にする必要があります。
【ご購入前の注意事項】
- 住宅分電盤近辺に本製品が増設できるスペースがあるか確認してください。
- 引込線に余長があることを確認してください。余長がない場合、再配線または電線の延長が必要となります。
- 配線延長時は住宅分電盤内に電線接続部が配置できるスペースがあるか確認してください。
- 住宅分電盤の主幹容量を事前に確認してください。既設盤の主幹容量が75Aまで対応可能です(主幹容量100Aは対応できません)。
- 住宅分電盤に非常用回路、蓄熱暖房器、エコキュート、電気温水器等、1次送り回路がある場合は、本製品に1次送り回路を設置する必要があります。
- 住宅分電盤にて、電気の使用量を計測している場合は、主幹ブレーカを計測しているCT線が延長できる構造となっているか確認してください。本製品への移設または延長ができない場合、本製品分の電気の使用量は計測することができません。
寸法図・配線例
寸法図(寸法表示単位:mm)
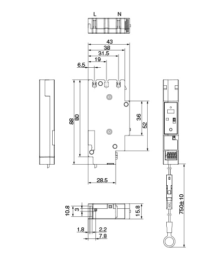
感震ブレーカー
BQX702


単3中性線欠相保護付 漏電ブレーカ AB-60J型 感震ブレーカー機能付
BJX340325J2K、BJX350325J2K、BJX360325J2K


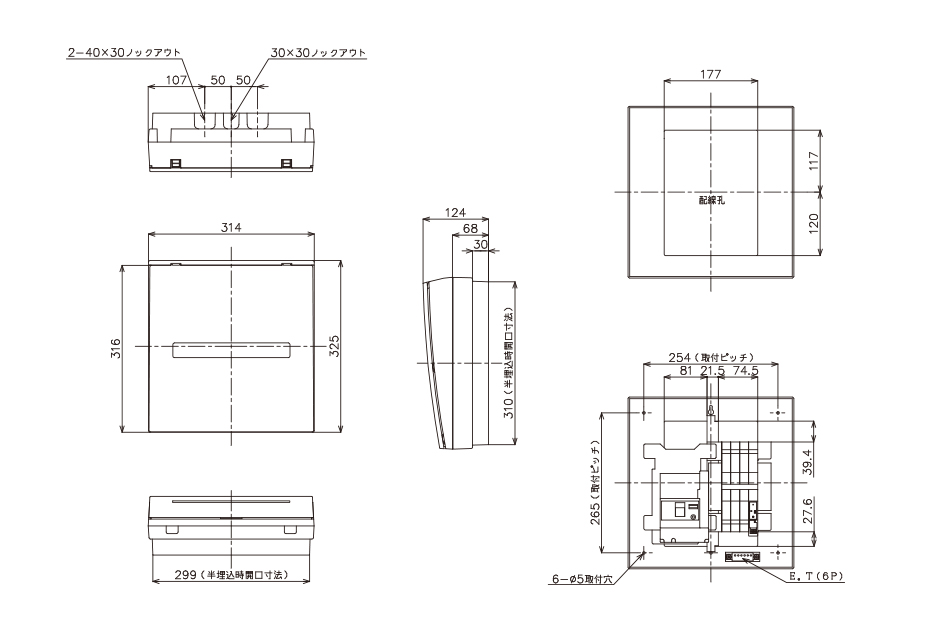
感震リニューアルボックス
BQE325□ZK


※品番の□は主幹容量表示で、3(30A)、4(40A)、5(50A)、6(60A)、7(75A)、10(100A)のいずれかが入ります。
感震ブレーカー搭載マルチボックス
BQE8□07Z(A)


※品番の□は主幹容量表示で、3(30A)、4(40A)、5(50A)、6(60A)、7(75A)のいずれかが入ります。
配線例
感震リニューアルボックス
リミッターなしの配線


リミッター付の配線


感震ブレーカー搭載マルチボックス
リミッターなしの配線


リミッター付の配線









