照度分布図計算
この機能は、Archicad上で照度を計算し、照度分布図を表⽰するものです。
Archicadのゾーンから部屋形状と照明器具を抽出し、照度計算を⾏います。

■操作⼿順
- 単⼀のゾーンを選択します。

- メニューバーの「Panasonic」から「照度分布図計算」を選択します。

ゾーンが選択されていない場合は、下記のメッセージが表⽰されます。単⼀のゾーンを選択してください。

- 計算時の反射率、計算⾯⾼さ、レイヤー設定などを⼊⼒し、「実⾏」ボタンを押します。

- 計算処理が始まりますので、完了までお待ちください。

フォント参照が⾒つからない場合は警告画⾯が表⽰されますが、「全て無視」を選択してください。

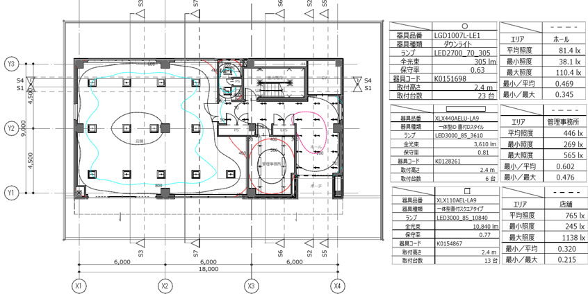
- 計算結果が照度分布図として表⽰されます。

計算結果表と使⽤器具表が表⽰されますので、必要に応じて位置を調整してください。
■既知の問題
- Panasonic照明器具オブジェクトで照度計算を⾏う場合、GDLファイル以外に外部参照ファイルが必要です。
GDLファイルのみを他プロジェクトで共有した場合、下記エラーが表⽰され照度計算ができません。

Panasonic照明器具オブジェクトを利⽤する場合は、「照明器具オブジェクト作成」機能から都度作成し、照度計算を⾏ってください。